Beschrijving
Op zoek naar een ruim appartement in de populaire wijk Hintham-Zuid? Wacht niet langer en vraag een bezichtiging aan! Dit driekamerappartement is gelegen op de bovenste verdieping en beschikt over twee balkons, wat zorgt voor een fijne buitenruimte. De badkamer en keuken zijn netjes en praktisch ingericht. De twee volwaardige slaapkamers maken dit appartement helemaal af.
Het complex is gelegen tegenover een winkelcentrum met diverse basisvoorzieningen. Daarnaast bevindt de binnenstad van ’s-Hertogenbosch zich op slechts 10 minuten fietsen. Bent u juist op zoek naar rust en groen, dan liggen het Maximakanaal, het Kanaalpark en de Oosterplas op fietsafstand. Ook de uitvalswegen richting Eindhoven, Tilburg, Utrecht en Nijmegen zijn snel en eenvoudig bereikbaar.
Kenmerken
• Bouwjaar: 1964
• Gebruiksoppervlakte wonen: 69 m²
• Gebouw gebonden buitenruimte: 5 m²
• Berging: 6 m²
• Energielabel: E (geldig tot 03-11-2035)
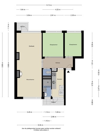
Indeling:
Begane grond: Entree met intercom en brievenbussen, eigen berging en trappenhuis naar de derde verdieping.
Derde verdieping: Hal, meterkast, toilet, twee slaapkamers, keuken, woonkamer en twee balkons.
Omschrijving:
U komt binnen in de centrale hal met intercom, brievenbussen en toegang tot de bergingen. Via het trappenhuis bereikt u de derde verdieping, waar u de overloop deelt met één buur.
Derde verdieping:
Bij binnenkomst komt u in de ruime hal die toegang biedt tot alle vertrekken, de meterkast en het toilet. Het appartement is grotendeels voorzien van een laminaatvloer en gestucte wanden.
Woonkamer: De ruime woonkamer strekt zich uit over de volledige diepte van het appartement. Dankzij de praktische indeling is de ruimte op verschillende manieren in te richten. Vanuit de woonkamer is er toegang tot het balkon, gelegen op het zuiden.
Slaapkamer 1:Deze slaapkamer is gelegen direct bij binnenkomst in de hal. De kamer is voorzien van vloerbedekking en behangen wanden.
Slaapkamer 2: Deze slaapkamer heeft een oppervlakte van circa 10 m² en is eveneens voorzien van vloerbedekking. De wanden zijn gestukt en uitgevoerd in verschillende kleuren.
Keuken: De keuken bevindt zich aan de achterzijde van het appartement en is uitgerust met een 4-pits gaskookplaat, afzuigkap, oven en diverse boven- en onderkasten. Tevens bevinden zich hier de aansluitingen voor zowel de wasmachine als de droger. Vanuit de keuken is er toegang tot het balkon en de badkamer. Het balkon is gelegen op het noorden.
Badkamer: De badkamer is grotendeels betegeld en voorzien van een inloopdouche, wastafel en een HR-combiketel (2015).
Berging: De berging is gelegen op de begane grond en is zeer ruim.
• Appartement gedeeltelijk voorzien van kunststof kozijnen met HR ++ glas
• VvE-bijdrage circa € 140,07,-- per maand, actieve en gezonde Vereniging
• Huidige eigenaresse heeft lage stookkosten (circa €100,-- per maand)
• Woning kan op korte termijn worden opgeleverd
• Voldoende parkeergelegenheden in de omgeving
Vraag altijd naar de lijst van zaken.
Deze woning is gemeten volgens de Meetinstructie. De Meetinstructie is gebaseerd op de NEN2580. De Meetinstructie is bedoeld om een meer eenduidige manier van meten toe te passen voor het geven van de gebruiksoppervlakte. De Meetinstructie sluit verschillen in meetuitkomsten niet volledig uit, door bijvoorbeeld interpretatieverschillen, afrondingen of beperkingen bij het uitvoeren van de meting.
Hoewel wij de woning met veel zorg en naar eer en geweten hebben opgemeten, kan het zijn dat er verschillen zijn in de afmetingen. De opgegeven maten zijn indicatief, er kunnen kleine verschillen zijn. Afhankelijk van de moeilijkheidsgraad van het te meten specifieke object kunnen deze verschillen groter of kleiner zijn. Indien de exacte maatvoering voor u van belang is, raden wij u aan de maten zelf te (laten) meten.
Alle genoemde jaartallen zijn circa en zuiver indicatief.
Een mondelinge overeenstemming tussen de particuliere verkoper en de particuliere koper is niet rechtsgeldig. Met andere woorden: er is geen koop. Er is pas sprake van een rechtsgeldige koop als de particuliere verkoper en de particuliere koper de koopovereenkomst hebben ondertekend. Dit vloeit voort uit artikel 7:2 Burgerlijk Wetboek. Een bevestiging van de mondelinge overeenstemming per e-mail of een toegestuurd concept van de koopovereenkomst wordt overigens niet gezien als een 'ondertekende koopovereenkomst'.
De koopakte betreft een standaard-VastgoedNederland koopovereenkomst met een aantal aanvullende artikelen, zoals:
- notarisclausule (maximum aan kosten voor verkoper en tijdsbepaling)
- meetclausule (aansprakelijkheid verkoper en makelaar)
- waarborgsom/bankgarantie van 10%
- Ouderdomsclausule (woning ouder dan 25 jaar)
- Asbest clausule
Deze informatie is door ons met de nodige zorgvuldigheid samengesteld. Dit geldt voor het opmeten van de ruimten, het geven van jaartallen en het geven van overige informatie. Heeft u twijfels omtrent de juistheid van enig punt dan verzoeken wij u vriendelijk dit aan ons kenbaar te maken. Onzerzijds wordt echter geen enkele aansprakelijkheid aanvaard voor enige onvolledigheid, onjuistheid of anderszins, dan wel de gevolgen daarvan. Eens te meer niet indien de betreffende informatie ouder is, moeilijker te verkrijgen, dan wel voor meerdere interpretaties vatbaar.