Beschrijving
Toe aan je volgende stap in de woningmarkt?
Deze zeer ruime en instapklare twee-onder-een-kapwoning is gelegen op een groot perceel, op een bijzonder rustige locatie. De woning beschikt over maar liefst 157 m² gebruiksoppervlakte wonen, vier volwaardige slaapkamers, een luxe moderne keuken en een ruime badkamer. De vrijstaande garage van ruim 22 m² met nieuwe garagedeur maakt het geheel compleet.
De woning ligt aan een rustige straat met uitsluitend bestemmingsverkeer. In de directe omgeving bevinden zich diverse speeltuinen en veldjes, en ook de basisschool ligt op loopafstand. De uitvalswegen richting ’s-Hertogenbosch, Eindhoven en Tilburg zijn binnen enkele minuten bereikbaar.
Kenmerken van de woning:
• Bouwjaar: 1975
• Woonoppervlakte: ca. 157 m²
• Externe berging: ca. 22 m²
• Perceeloppervlakte: ca. 337 m²
• Energielabel: C
Indeling:
Begane grond: hal, toilet, woonkamer, open keuken, bijkeuken en vrijstaande garage
Eerste verdieping: overloop, drie slaapkamers en badkamer
Tweede verdieping: voorzolder, stookruimte en vierde slaapkamer
De groene voortuin met ruime oprit en plaats voor twee auto’s biedt toegang tot de woning.
U betreedt de woning via de ruime hal, met toilet, meterkast, trap naar de eerste verdieping en toegang tot de woonkamer.
De L-vormige woonkamer is volledig voorzien van een tegelvloer met vloerverwarming en strak gestucte, lichte wanden. Dankzij de grote raampartijen aan de voorzijde is de ruimte heerlijk licht. De woonkamer biedt bovendien diverse indelingsmogelijkheden.
De open, luxe keuken (2017) is geplaatst in een praktische opstelling en voorzien van een 5-pits gaskookstel, afzuigkap, vaatwasser (2024), 1,5 spoelbak, koelkast, oven en magnetron. De keuken is uitgebouwd, wat zorgt voor een ideale eethoek.
Vanuit de keuken bereikt u de bijkeuken, voorzien van een vaste kast met aansluitingen voor wasmachine en droger, een wastafel en een bergkast met vloerverwarmingsverdeler. De bijkeuken geeft tevens toegang tot de achtertuin.
De achtertuin is gelegen op het westen. Door de vrije ligging kunt u hier de hele dag van de zon genieten. De tuin is grotendeels verhard en beschikt over een grasveld voor kinderen.
De vrijstaande garage is ruim en momenteel in gebruik als opslagruimte, maar biedt ook plaats voor het stallen van een voertuig. De garage is voorzien van elektra, een betonvloer en een nieuwe elektrische garagedeur (2026).
Naast de garage bevindt zich een overkapping die het hele jaar door een fijne zitplek biedt. Ook deze overkapping is ruim 22m² en op verschillende manieren in te delen.
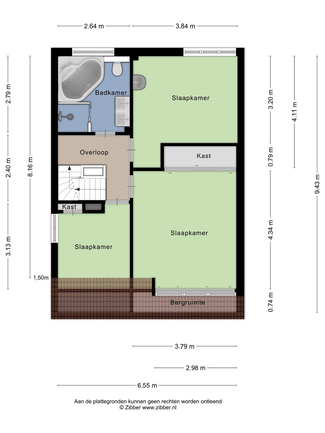
Via de vaste trap in de hal bereikt u de overloop van de eerste verdieping, die toegang geeft tot drie slaapkamers, de badkamer en de vaste trap naar de zolder.
Eerste verdieping
Slaapkamer 1: Gelegen aan de achterzijde, voorzien van een lichte laminaatvloer en lichte wanden. Ruim van opzet met 13m² en uitgerust met een wastafel.
Slaapkamer 2: Zeer ruime slaapkamer 16m² aan de voorzijde, voorzien van een dakkapel, vaste kast en veel bergruimte achter de knieschotten.
Slaapkamer 3: Gelegen aan de voorzijde, met strak gestucte wanden in verschillende kleuren en een vaste kast. Deze kamer is 8m² en kan ook gebruikt worden als thuiswerkplek of atelier.
Badkamer: Gelegen aan de achterzijde en voorzien van een inloopdouche, hoekbad, toilet en een dubbele wastafel met meubel.
Tweede verdieping
Via de vaste trap bereikt u de voorzolder, die toegang biedt tot de vierde slaapkamer en de stookruimte. De voorzolder is voorzien van airconditioning.
Slaapkamer 4: Zeer ruime slaapkamer 16m² is gelegen over de volle lengte van de woning, voorzien van een dakkapel. Momenteel in gebruik als thuiswerkplek. Beschikt tevens over een wastafel en bergruimte achter de knieschotten.
Stookruimte: Hier bevindt zich de Nefit HR-ketel uit 2010. De ruimte is netjes afgewerkt met een laminaatvloer en biedt extra bergruimte.
Bijzonderheden
- Woning is op korte termijn op te leveren
- Nieuwe garagedeur gaat geplaatst worden in 2026
- Parkeergelegenheid op eigen terrein
Vraag altijd naar de lijst van zaken.
Deze woning is gemeten volgens de Meetinstructie. De Meetinstructie is gebaseerd op de NEN2580. De Meetinstructie is bedoeld om een meer eenduidige manier van meten toe te passen voor het geven van de gebruiksoppervlakte. De Meetinstructie sluit verschillen in meetuitkomsten niet volledig uit, door bijvoorbeeld interpretatieverschillen, afrondingen of beperkingen bij het uitvoeren van de meting.
Hoewel wij de woning met veel zorg en naar eer en geweten hebben opgemeten, kan het zijn dat er verschillen zijn in de afmetingen. De opgegeven maten zijn indicatief, er kunnen kleine verschillen zijn. Afhankelijk van de moeilijkheidsgraad van het te meten specifieke object kunnen deze verschillen groter of kleiner zijn. Indien de exacte maatvoering voor u van belang is, raden wij u aan de maten zelf te (laten) meten.
Alle genoemde jaartallen zijn circa en zuiver indicatief.
Een mondelinge overeenstemming tussen de particuliere verkoper en de particuliere koper is niet rechtsgeldig. Met andere woorden: er is geen koop. Er is pas sprake van een rechtsgeldige koop als de particuliere verkoper en de particuliere koper de koopovereenkomst hebben ondertekend. Dit vloeit voort uit artikel 7:2 Burgerlijk Wetboek. Een bevestiging van de mondelinge overeenstemming per e-mail of een toegestuurd concept van de koopovereenkomst wordt overigens niet gezien als een 'ondertekende koopovereenkomst'.
De koopakte betreft een standaard-VastgoedNederland koopovereenkomst met een aantal aanvullende artikelen, zoals:
- notarisclausule (maximum aan kosten voor verkoper en tijdsbepaling)
- meetclausule (aansprakelijkheid verkoper en makelaar)
- waarborgsom/bankgarantie van 10%
- Ouderdomsclausule (woning ouder dan 25 jaar)
- Asbest clausule
Deze informatie is door ons met de nodige zorgvuldigheid samengesteld. Dit geldt voor het opmeten van de ruimten, het geven van jaartallen en het geven van overige informatie. Heeft u twijfels omtrent de juistheid van enig punt dan verzoeken wij u vriendelijk dit aan ons kenbaar te maken. Onzerzijds wordt echter geen enkele aansprakelijkheid aanvaard voor enige onvolledigheid, onjuistheid of anderszins, dan wel de gevolgen daarvan. Eens te meer niet indien de betreffende informatie ouder is, moeilijker te verkrijgen, dan wel voor meerdere interpretaties vatbaar.