Beschrijving
Op zoek naar een ruime en instapklare tussenwoning op een rustige locatie in Boxtel-Oost? Twijfel niet en plan direct een bezichtiging voor deze woning aan de Puccinistraat 64!
De woning beschikt over een ruime en lichte begane grond met een woonkamer, open keuken en bijkeuken. Daarnaast zijn er vier volwaardige slaapkamers en een zonnige tuin op het zuiden. Bovendien is de woning verduurzaamd en voorzien van energielabel A.
De woning is gelegen aan een rustige straat met diverse speeltuinen en groenvoorzieningen in de directe omgeving. Er is volop parkeergelegenheid in de straat en in de nabijgelegen parkeerhavens. De woning ligt op loopafstand van zowel het centrum als Winkelcentrum Oosterhof. Binnen enkele minuten bereikt u de uitvalswegen richting ’s-Hertogenbosch, Tilburg en Eindhoven.
Kenmerken
• Bouwjaar: 1980
• Woonoppervlakte: ca. 122 m²
• Externe bergruimte: ca. 8 m²
• Gebouwgebonden buitenruimte: ca. 2 m²
• Perceeloppervlakte: ca. 149 m²
• Energielabel: A (geldig tot 23-03-2036)
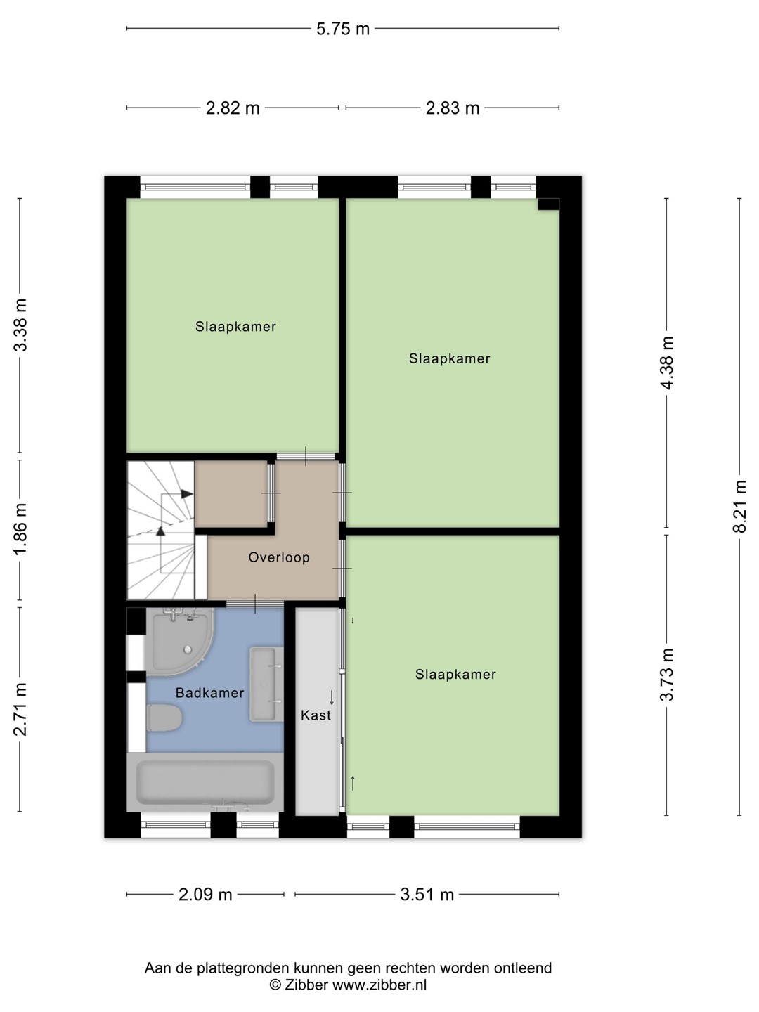
Indeling van de woning
Begane grond: hal, toilet, woonkamer, keuken en bijkeuken
Eerste verdieping: overloop, drie slaapkamers en badkamer
Tweede verdieping: voorzolder en vierde slaapkamer
Omschrijving
Tussenwoning gelegen aan een rustige straat met uitsluitend bestemmingsverkeer.
Via de onderhoudsvrije voortuin bereikt u de hal van de woning. De hal biedt toegang tot het toilet, de garderobe, de meterkast en de woonkamer.
De zeer lichte en ruime woonkamer is voorzien van een lichte houten vloer en wanden in een neutrale kleurstelling. Dankzij de royale indeling is de woonkamer op verschillende manieren in te richten. De open trap naar de eerste verdieping bevindt zich in de woonkamer en via de schuifpui bereikt u de op het zuiden gelegen tuin.
De open keuken (2010) is uitgevoerd in een hoekopstelling en voorzien van een inductiekookplaat, afzuigkap, koelkast, vriezer, vaatwasser, oven en veel bergruimte. Aansluitend bevindt zich de bijkeuken met diverse aansluitingen. Vanuit de bijkeuken heeft u eveneens toegang tot de tuin.
De onderhoudsvriendelijke achtertuin is gelegen op het zuiden, waardoor u de hele dag van de zon kunt genieten. De zithoek met zonneluifel is een ideale plek tijdens zonnige dagen. Achter op het perceel bevindt zich een stenen berging, ideaal voor het stallen van fietsen en het opbergen van tuinspullen. De berging is voorzien van elektra. Via de achterom (schuifdeur) heeft u toegang tot de brandgang.
Eerste verdieping
De overloop biedt toegang tot drie slaapkamers, de badkamer en de vaste trap naar de tweede verdieping.
Slaapkamer 1: Gelegen aan de achterzijde van de woning en momenteel in gebruik als inloopkast. De kamer is ruim en afgewerkt met een lichte vloer en wanden.
Slaapkamer 2: Eveneens gelegen aan de achterzijde en ruim van opzet. Afgewerkt met een lichte vloer en deels gestucte wanden, gecombineerd met speels behang.
Slaapkamer 3: Gelegen aan de voorzijde van de woning en voorzien van een ruime inbouwkast. Ook deze kamer is afgewerkt met een lichte vloer en wanden.
De badkamer (2015) is volledig betegeld en uitgerust met een inloopdouche, ligbad, toilet, dubbele wastafel met meubel en een designradiator.
Tweede verdieping
De ruime voorzolder biedt toegang tot de vierde slaapkamer en beschikt over aansluitingen voor zowel de wasmachine als droger. Tevens bevinden zich hier de HR-combiketel (2011) en de omvormer van de zonnepanelen. Dankzij het dakraam is de voorzolder aangenaam licht.
Slaapkamer 4: Ruime slaapkamer met veel bergruimte achter de knieschotten. De kamer beschikt over een wastafel en is afgewerkt met tapijt.
Bijzonderheden
• 10 zonnepanelen (2021)
• Woning in 2024 volledig geschilderd
• HR-combiketel (2011, Itho Daalderop)
• Energielabel A
Vraag altijd naar de lijst van zaken.
Deze woning is gemeten volgens de Meetinstructie. De Meetinstructie is gebaseerd op de NEN2580. De Meetinstructie is bedoeld om een meer eenduidige manier van meten toe te passen voor het geven van de gebruiksoppervlakte. De Meetinstructie sluit verschillen in meetuitkomsten niet volledig uit, door bijvoorbeeld interpretatieverschillen, afrondingen of beperkingen bij het uitvoeren van de meting.
Hoewel wij de woning met veel zorg en naar eer en geweten hebben opgemeten, kan het zijn dat er verschillen zijn in de afmetingen. De opgegeven maten zijn indicatief, er kunnen kleine verschillen zijn. Afhankelijk van de moeilijkheidsgraad van het te meten specifieke object kunnen deze verschillen groter of kleiner zijn. Indien de exacte maatvoering voor u van belang is, raden wij u aan de maten zelf te (laten) meten.
Alle genoemde jaartallen zijn circa en zuiver indicatief.
Een mondelinge overeenstemming tussen de particuliere verkoper en de particuliere koper is niet rechtsgeldig. Met andere woorden: er is geen koop. Er is pas sprake van een rechtsgeldige koop als de particuliere verkoper en de particuliere koper de koopovereenkomst hebben ondertekend. Dit vloeit voort uit artikel 7:2 Burgerlijk Wetboek. Een bevestiging van de mondelinge overeenstemming per e-mail of een toegestuurd concept van de koopovereenkomst wordt overigens niet gezien als een 'ondertekende koopovereenkomst'.
De koopakte betreft een standaard-VastgoedNederland koopovereenkomst met een aantal aanvullende artikelen, zoals:
- notarisclausule (maximum aan kosten voor verkoper en tijdsbepaling)
- meetclausule (aansprakelijkheid verkoper en makelaar)
- waarborgsom/bankgarantie van 10%
- Ouderdomsclausule (woning ouder dan 25 jaar)
- Asbest clausule
Deze informatie is door ons met de nodige zorgvuldigheid samengesteld. Dit geldt voor het opmeten van de ruimten, het geven van jaartallen en het geven van overige informatie. Heeft u twijfels omtrent de juistheid van enig punt dan verzoeken wij u vriendelijk dit aan ons kenbaar te maken. Onzerzijds wordt echter geen enkele aansprakelijkheid aanvaard voor enige onvolledigheid, onjuistheid of anderszins, dan wel de gevolgen daarvan. Eens te meer niet indien de betreffende informatie ouder is, moeilijker te verkrijgen, dan wel voor meerdere interpretaties vatbaar.