Beschrijving
Zeer goed onderhouden, instapklare tussenwoning gelegen in de wijk In Goede Aarde. Wij heten u van harte welkom aan de Huygensstraat 139 te Boxtel. De woning beschikt over vier slaapkamers, een ruime keuken, een nette badkamer en een onderhoudsarme tuin met uitgebouwde berging. Daarnaast is de woning uitgerust met energielabel A+++, mede dankzij de nieuwe warmtepomp (2023) en 28 zonnepanelen.
De woning is gelegen aan de rand van de wijk en betreft een zogenoemde walwoning. In de directe omgeving bevinden zich diverse sportvelden, speeltuinen en basisscholen, allen op korte fietsafstand. Ook het centrum van Boxtel en het treinstation zijn per fiets goed bereikbaar. De uitvalswegen richting ’s-Hertogenbosch, Eindhoven en Tilburg zijn binnen enkele autominuten bereikbaar.
Kenmerken
• Bouwjaar: 2005
• Gebruiksoppervlakte wonen: 146 m²
• Perceeloppervlakte: 230 m²
• Externe bergruimte: 11 m² met carport van circa 27 m²
• Energielabel: A+++ (geldig tot 06-12-2034)
Indeling van de woning
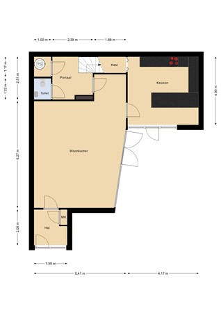
Begane grond: Hal, meterkast, woonkamer, keuken, tussenportaal, toilet en stookruimte.
Eerste verdieping: Overloop, twee slaapkamers en de badkamer.
Tweede verdieping: Overloop, twee slaapkamers en technische ruimte met toilet.
Begane grond
Hal: U komt binnen in de hal met garderobe, meterkast en toegang tot de woonkamer.
Woonkamer: De woonkamer is ruim opgezet en zeer licht door de grote raampartijen. De ruimte is voorzien van een houten visgraatvloer en gestucte wanden. De gehele begane grond is uitgerust met vloerverwarming. Vanuit de woonkamer heeft u toegang tot de keuken, de hal en de tuin.
Keuken: De keuken staat in een U-opstelling en is voorzien van een inductiekookplaat, afzuigkap, oven, magnetron, koelkast, vriezer, vaatwasser en veel bergruimte in de diverse onder- en bovenkasten en lades. Inbouwapparatuur is allemaal vernieuwd in 2024. De trapkast creëert extra opslagruimte. De keuken beschikt over een donkere tegelvloer en lichte, strak gestucte wanden. Ook vanuit de keuken is er toegang tot de tuin.
Tussenportaal: Vanuit de woonkamer bereikt u het tussenportaal, met toegang tot de vaste trap naar de eerste verdieping, het toilet met fontein en de stookruimte met warmtepomp (2023).
Tuin: De ruime tuin is gelegen aan de voorzijde van de woning op het zuidwesten en onderhoudsarm ingericht met tegels, kunstgras en twee houten terrassen. De berging met overkapping is uitgebouwd en biedt ideale opbergruimte voor tuinspullen en fietsen. In deze tuin kunt u de hele dag genieten van de zon.
Eerste verdieping
Via de trap komt u op de overloop met toegang tot twee slaapkamers, de badkamer en de vaste trap naar de tweede verdieping. De gehele verdieping is voorzien van een houten parketvloer en strak gestucte wanden.
Slaapkamer 1: Deze ruime slaapkamer van 17 m² beschikt over een grote vaste kast, strak gestucte wanden en een houten parketvloer.
Slaapkamer 2: Deze slaapkamer is 9 m² groot en voorzien van gestucte wanden en een houten parketvloer.
Badkamer: De ruime badkamer van 10 m² is gelegen tussen de twee slaapkamers. De badkamer is volledig betegeld en voorzien van een dubbele inloopdouche, toilet, dubbele wastafel en een vaste kast.
Tweede verdieping
De overloop biedt toegang tot twee slaapkamers en de technische ruimte met toilet. Ook deze verdieping is volledig voorzien van vloerverwarming en parket vloer.
Slaapkamer 3: Deze ruime slaapkamer van 17 m² heeft grote raampartijen, een houten parketvloer en strak gestucte wanden. Het grote raam zorgt voor veel lichtinval en vrij uitzicht.
Slaapkamer 4: Deze slaapkamer is 9 m² groot en voorzien van een houten parketvloer, strak gestucte wanden en een groot raam met eveneens vrij uitzicht.
Technische ruimte: In deze ruimte bevinden zich de zonneboiler, WTW-unit, omvormers, een keukenblok met elektrische boiler en de aansluitingen voor zowel wasmachine als droger. Tevens bevindt zich hier het toilet voor deze verdieping. De technische ruimte ligt centraal tussen de twee slaapkamers.
Bijzonderheden:
• Woning is in zijn geheel geschilderd in 2024
• Woning met eigen parkeerplaats onder de carport met laadpaal
• Woning geheel voorzien van houten kozijnen met HR++ glas
• Energielabel: A+++
• Warmtepomp geplaatst in 2023
Vraag altijd naar de lijst van zaken.
Deze woning is gemeten volgens de Meetinstructie. De Meetinstructie is gebaseerd op de NEN2580. De Meetinstructie is bedoeld om een meer eenduidige manier van meten toe te passen voor het geven van de gebruiksoppervlakte. De Meetinstructie sluit verschillen in meetuitkomsten niet volledig uit, door bijvoorbeeld interpretatieverschillen, afrondingen of beperkingen bij het uitvoeren van de meting.
Hoewel wij de woning met veel zorg en naar eer en geweten hebben opgemeten, kan het zijn dat er verschillen zijn in de afmetingen. De opgegeven maten zijn indicatief, er kunnen kleine verschillen zijn. Afhankelijk van de moeilijkheidsgraad van het te meten specifieke object kunnen deze verschillen groter of kleiner zijn. Indien de exacte maatvoering voor u van belang is, raden wij u aan de maten zelf te (laten) meten.
Alle genoemde jaartallen zijn circa en zuiver indicatief.
Een mondelinge overeenstemming tussen de particuliere verkoper en de particuliere koper is niet rechtsgeldig. Met andere woorden: er is geen koop. Er is pas sprake van een rechtsgeldige koop als de particuliere verkoper en de particuliere koper de koopovereenkomst hebben ondertekend. Dit vloeit voort uit artikel 7:2 Burgerlijk Wetboek. Een bevestiging van de mondelinge overeenstemming per e-mail of een toegestuurd concept van de koopovereenkomst wordt overigens niet gezien als een 'ondertekende koopovereenkomst'.
De koopakte betreft een standaard-VastgoedNederland koopovereenkomst met een aantal aanvullende artikelen, zoals:
- notarisclausule (maximum aan kosten voor verkoper en tijdsbepaling)
- meetclausule (aansprakelijkheid verkoper en makelaar)
- waarborgsom/bankgarantie van 10%
Deze informatie is door ons met de nodige zorgvuldigheid samengesteld. Dit geldt voor het opmeten van de ruimten, het geven van jaartallen en het geven van overige informatie. Heeft u twijfels omtrent de juistheid van enig punt dan verzoeken wij u vriendelijk dit aan ons kenbaar te maken. Onzerzijds wordt echter geen enkele aansprakelijkheid aanvaard voor enige onvolledigheid, onjuistheid of anderszins, dan wel de gevolgen daarvan. Eens te meer niet indien de betreffende informatie ouder is, moeilijker te verkrijgen, dan wel voor meerdere interpretaties vatbaar.