Beschrijving
Bent u op zoek naar een instapklare hoekwoning op een zeer ruim perceel? Twijfel dan niet en neem contact met ons op om deze mooie woning aan de Linnenbleker 14 te bezichtigen. De woning is recent voorzien van een nieuwe keuken, beschikt over een moderne en luxe badkamer, vier volwaardige slaapkamers en is bovendien duurzaam dankzij energielabel A.
De woning is gelegen aan een doodlopende straat, wat zorgt voor rust en uitsluitend bestemmingsverkeer. In de directe omgeving vindt u diverse speeltuinen, plantsoenen en basisscholen. Winkelcentrum Oosterhof, het centrum van Boxtel en het treinstation zijn binnen enkele minuten fietsen bereikbaar. Ook uitvalswegen richting ’s-Hertogenbosch, Eindhoven en Tilburg zijn snel te bereiken.
Kenmerken:
• Bouwjaar: 1978
• Woonoppervlakte: 117 m²
• Gebouw gebonden buitenruimte: 15 m²
• Berging: 8 m²
• Perceeloppervlakte: 262 m²
• Energielabel: A (geldig tot 12-11-2035)
Indeling van de woning
Begane grond: Hal, toilet, woonkamer met open keuken, bijkeuken en overkapping
Eerste verdieping: Overloop, drie slaapkamers, badkamer
Tweede verdieping: Voorzolder en slaapkamer met dakkapel
Begane grond
Hal met toilet, meterkast en toegang tot de woonkamer.
Het toilet is volledig betegeld en voorzien van een fontein. De meterkast is vernieuwd in 2019 en in 2025 uitgebreid met 3-fase stroom.
De woonkamer is voorzien van een lichte laminaatvloer (2021) en wanden met diverse afwerkingen. Dankzij de grote raampartijen aan zowel de voor- als achterzijde is de ruimte zeer licht. In de woonkamer bevindt zich eveneens een airco (2023). Via een loopdeur heeft u toegang tot de achtertuin.
De open keuken (2025) is bereikbaar vanuit de woonkamer en is hoogwaardig afgewerkt. De keuken is voorzien van een inductiekookplaat, Quooker, koelkast, combimagnetron, vaatwasser en afzuigkap en heeft een donkere tegelvloer.
Aansluitend bevindt zich de zeer ruime bijkeuken met aansluitingen voor de wasmachine en droger, evenals de omvormer van de zonnepanelen.
Achtertuin
De achtertuin ligt op het zuiden en is dankzij het extra zijperceel uitzonderlijk ruim. Aan de achterzijde van de woning bevindt zich een aluminium overkapping met terrasverwarmer en ingebouwde spotverlichting.
De tuin is deels bestraat en deels voorzien van gras. De ruime vrijstaande berging biedt praktische opslag en is uitgerust met vier zonnepanelen. Via de achterom heeft u toegang tot de brandgang, ideaal voor het stallen van fietsen.
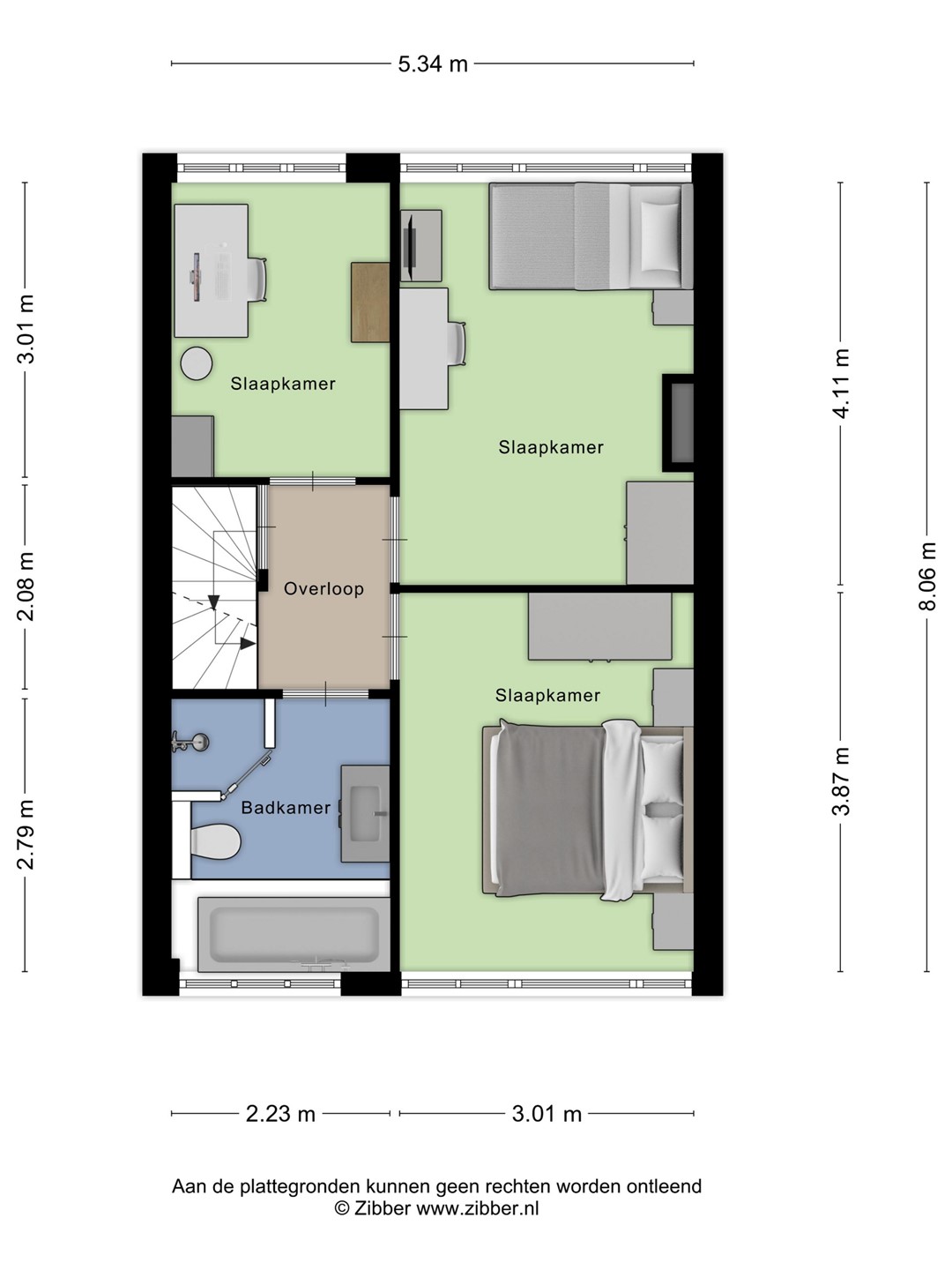
Eerste verdieping
Overloop met toegang tot drie slaapkamers en de badkamer. De overloop is voorzien van een lichte vinylvloer en geeft toegang tot de trap naar de zolder.
• Slaapkamer I (achterzijde): momenteel in gebruik als thuiswerkplek. Voorzien van een lichte vinylvloer, diverse wandafwerkingen en elektrische rolluiken.
• Slaapkamer II (achterzijde): een ruime en lichte slaapkamer voorzien van een lichte vinylvloer, strak afgewerkte wanden en elektrische rolluiken.
• Slaapkamer III (voorzijde): eveneens voorzien van een lichte vinylvloer en diverse wandafwerkingen.
Badkamer (2018): moderne en complete badkamer uitgerust met ligbad, zwevend toilet, inloopdouche, wastafelmeubel en designradiator.
Zolderverdieping
Voorzolder met dakkapel en veel bergruimte, zowel in de ruimte zelf als achter de knieschotten. Hier bevindt zich ook de HR-ketel.
Slaapkamer: een ruime en lichte kamer dankzij de dakkapel (2022) aan de voorzijde en het dakraam aan de achterzijde. Deze verdieping is eveneens voorzien van airconditioning. Het dak is extra geïsoleerd, wat zorgt voor warme winters en koele zomers. De dakkapel is uitgerust met elektrische rolluiken en kunststof kozijnen. Ook op deze verdieping is veel bergruimte aanwezig achter de schotten.
Bijzonderheden
• Hoekwoning met extra veel grond vanwege extra perceel
• Voldoende parkeergelegenheid in de omgeving
• Energielabel A
• Voorzien van 16 zonnepanelen en dak is geheel isoleert
• Keuken 2025 en de badkamer 2018 zijn luxe en modern
Vraag altijd naar de lijst van zaken.
Deze woning is gemeten volgens de Meetinstructie. De Meetinstructie is gebaseerd op de NEN2580. De Meetinstructie is bedoeld om een meer eenduidige manier van meten toe te passen voor het geven van de gebruiksoppervlakte. De Meetinstructie sluit verschillen in meetuitkomsten niet volledig uit, door bijvoorbeeld interpretatieverschillen, afrondingen of beperkingen bij het uitvoeren van de meting.
Hoewel wij de woning met veel zorg en naar eer en geweten hebben opgemeten, kan het zijn dat er verschillen zijn in de afmetingen. De opgegeven maten zijn indicatief, er kunnen kleine verschillen zijn. Afhankelijk van de moeilijkheidsgraad van het te meten specifieke object kunnen deze verschillen groter of kleiner zijn. Indien de exacte maatvoering voor u van belang is, raden wij u aan de maten zelf te (laten) meten.
Alle genoemde jaartallen zijn circa en zuiver indicatief.
Een mondelinge overeenstemming tussen de particuliere verkoper en de particuliere koper is niet rechtsgeldig. Met andere woorden: er is geen koop. Er is pas sprake van een rechtsgeldige koop als de particuliere verkoper en de particuliere koper de koopovereenkomst hebben ondertekend. Dit vloeit voort uit artikel 7:2 Burgerlijk Wetboek. Een bevestiging van de mondelinge overeenstemming per e-mail of een toegestuurd concept van de koopovereenkomst wordt overigens niet gezien als een 'ondertekende koopovereenkomst'.
De koopakte betreft een standaard-NVM koopovereenkomst met een aantal aanvullende artikelen, zoals:
- ouderdomsclausule (bij woningen ouder dan 25 jaar)
- asbestclausule (bij woningen van voor 1993)
- notarisclausule (maximum aan kosten voor verkoper en tijdsbepaling)
- meetclausule (aansprakelijkheid verkoper en makelaar)
- waarborgsom/bankgarantie van 10%
Deze informatie is door ons met de nodige zorgvuldigheid samengesteld. Dit geldt voor het opmeten van de ruimten, het geven van jaartallen en het geven van overige informatie. Heeft u twijfels omtrent de juistheid van enig punt dan verzoeken wij u vriendelijk dit aan ons kenbaar te maken. Onzerzijds wordt echter geen enkele aansprakelijkheid aanvaard voor enige onvolledigheid, onjuistheid of anderszins, dan wel de gevolgen daarvan. Eens te meer niet indien de betreffende informatie ouder is, moeilijker te verkrijgen, dan wel voor meerdere interpretaties vatbaar.