Beschrijving

Bent u op zoek naar een woning met veel mogelijkheden?
Deze ruime hoekwoning aan de Puccinistraat 62 in Boxtel biedt u die kans! Twijfel niet en plan een bezichtiging in. De woning is gelegen op een groot perceel, beschikt over vier volwaardige slaapkamers, een grote badkamer en een aangebouwde garage. De tuin is gunstig gelegen op het zuiden en de berging biedt extra opslagruimte voor tuingereedschap en fietsen.

De woning is gelegen in de wijk Boxtel Oost, op korte afstand van zowel het centrum als winkelcentrum Oosterhof. In de directe omgeving bevinden zich diverse speeltuinen/veldjes en basisscholen. Parkeren kan op eigen terrein, maar ook in de straat is er ruime gelegenheid voor bezoekers om te parkeren. Binnen enkele minuten rijdt u op de ontsluitingswegen richting ’s-Hertogenbosch, Tilburg en Eindhoven.

Kenmerken
•	Bouwjaar: 1980
•	Woonoppervlakte: 120 m²
•	Overige inpandige ruimte: 24 m² (garage)
•	Gebouw gebonden buitenruimte: 2 m²
•	Externe berging: 8 m²
•	Energielabel: B (geldig tot 22-01-2036)

Indeling van de woning:
Begane grond: entree, toilet, woonkamer en keuken
Eerste verdieping: overloop, drie slaapkamers en badkamer
Zolderverdieping: voorzolder en vierde slaapkamer

Begane grond: U komt binnen in de ruime hal met meterkast, garderobe, toilet met fontein en toegang tot de woonkamer.

Woonkamer: De Z-vormige woonkamer is volledig voorzien van een natuurstenen vloer met vloerverwarming. De wanden zijn afgewerkt met spachtelputz. Door de ruime opzet is de woonkamer op verschillende manieren in te richten. In de huidige situatie bevindt zich de zithoek aan de voorzijde en de eethoek aan de achterzijde. Vanuit de eethoek is de achtertuin bereikbaar via dubbele tuindeuren. De trap in de woonkamer geeft toegang tot de overloop op de eerste verdieping.

Keuken: De halfopen keuken is gelegen aan de achterzijde van de woning en is uitgerust met een 5-pits gaskookplaat, afzuigkap, koelkast, vriezer, vaatwasser en veel bergruimte in de onder- en bovenkasten. Vanuit de keuken is eveneens de achtertuin bereikbaar.

Achtertuin: De achtertuin is extra ruim dankzij het grote perceel. De tuin is deels bestraat en deels groen aangelegd. De stenen berging met overkapping zorgt voor een droge achterom en extra bergruimte voor tuinspullen.

Garage: De aangebouwde garage is met 24 m² zeer ruim en geschikt voor diverse doeleinden. De garage is toegankelijk via de dubbele garagedeur aan de voorzijde en een enkele deur in de achtertuin.

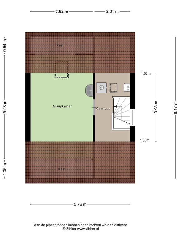
Eerste verdieping Overloop met toegang tot drie slaapkamers, de badkamer en de vaste trap naar de zolderverdieping.

Slaapkamer 1: Gelegen aan de voorzijde van de woning en met een royaal oppervlak een zeer aangename slaapkamer. Voorzien van een laminaatvloer en gestucte wanden.

Slaapkamer 2: Gelegen aan de achterzijde van de woning en eveneens ruim. Afgewerkt met gestucte wanden en een laminaatvloer.

Slaapkamer 3: De kleinste slaapkamer, gelegen aan de achterzijde, maar nog steeds ruim van opzet.

Badkamer: De ruime badkamer is volledig betegeld en voorzien van een douchecabine, ligbad, toilet, wastafelmeubel en designradiator.

Zolderverdieping Via de vaste trap bereikt u de voorzolder. Deze biedt veel bergruimte en beschikt over aansluitingen voor de wasmachine en de HR-combiketel (Intergas, 2022).

Slaapkamer 4: Deze zeer ruime slaapkamer is momenteel in gebruik als bergkamer. De kamer beschikt over een wastafel, dakraam en bergruimte achter de knieschotten. Het is toegestaan om aan de achterzijde een dakkapel te plaatsen, wat zorgt voor extra woonoppervlakte en meer licht op de zolderverdieping.

Bijzonderheden

•	Woning op korte termijn beschikbaar
•	Eigen inrit en ruime garage
•	Begane grotendeels voorzien van vloerverwarming
•	Voorzien van zonnepanelen (2023) en HR-combiketel (2022)
•	Dak van de garage is vervangen in 2023
•	Extra groot perceel


Vraag altijd naar de lijst van zaken.

Deze woning is gemeten volgens de Meetinstructie. De Meetinstructie is gebaseerd op de NEN2580. De Meetinstructie is bedoeld om een meer eenduidige manier van meten toe te passen voor het geven van de gebruiksoppervlakte. De Meetinstructie sluit verschillen in meetuitkomsten niet volledig uit, door bijvoorbeeld interpretatieverschillen, afrondingen of beperkingen bij het uitvoeren van de meting.
Hoewel wij de woning met veel zorg en naar eer en geweten hebben opgemeten, kan het zijn dat er verschillen zijn in de afmetingen. De opgegeven maten zijn indicatief, er kunnen kleine verschillen zijn. Afhankelijk van de moeilijkheidsgraad van het te meten specifieke object kunnen deze verschillen groter of kleiner zijn. Indien de exacte maatvoering voor u van belang is, raden wij u aan de maten zelf te (laten) meten.

Alle genoemde jaartallen zijn circa en zuiver indicatief.

Een mondelinge overeenstemming tussen de particuliere verkoper en de particuliere koper is niet rechtsgeldig. Met andere woorden: er is geen koop. Er is pas sprake van een rechtsgeldige koop als de particuliere verkoper en de particuliere koper de koopovereenkomst hebben ondertekend. Dit vloeit voort uit artikel 7:2 Burgerlijk Wetboek. Een bevestiging van de mondelinge overeenstemming per e-mail of een toegestuurd concept van de koopovereenkomst wordt overigens niet gezien als een 'ondertekende koopovereenkomst'.

De koopakte betreft een standaard-VastgoedNederland koopovereenkomst met een aantal aanvullende artikelen, zoals:
- notarisclausule (maximum aan kosten voor verkoper en tijdsbepaling)
- meetclausule (aansprakelijkheid verkoper en makelaar)
- waarborgsom/bankgarantie van 10% 
- Ouderdomsclausule (woning ouder dan 25 jaar)
- Asbest clausule

Deze informatie is door ons met de nodige zorgvuldigheid samengesteld. Dit geldt voor het opmeten van de ruimten, het geven van jaartallen en het geven van overige informatie. Heeft u twijfels omtrent de juistheid van enig punt dan verzoeken wij u vriendelijk dit aan ons kenbaar te maken. Onzerzijds wordt echter geen enkele aansprakelijkheid aanvaard voor enige onvolledigheid, onjuistheid of anderszins, dan wel de gevolgen daarvan. Eens te meer niet indien de betreffende informatie ouder is, moeilijker te verkrijgen, dan wel voor meerdere interpretaties vatbaar.

Kenmerken