Beschrijving
Bent u op zoek naar een ruime eengezinswoning op een zeer geliefde locatie? Zoek dan niet verder en neem contact met ons op voor deze mooie woning aan het Apollopad 51 te Boxtel! De woning is aan de voorzijde uitgebouwd met een erker, heeft een dakkapel aan de achterzijde, een moderne keuken en een hoogwaardige afwerking. De vier volwaardige slaapkamers maken dit tot een ideale gezinswoning.
De woning is gelegen in de wijk Oost, op korte afstand van het centrum en het NS-station van Boxtel. Aan de voorzijde grenst de woning aan een fietspad en een groenstrook met speeltuin, waardoor het hier zelfs voor de kleinsten veilig buitenspelen is. Tevens is de ligging gunstig ten opzichte van de uitvalswegen richting ’s-Hertogenbosch, Tilburg en Eindhoven.
Kenmerken
• Bouwjaar: 1974
• Gebruiksoppervlakte wonen: 131 m²
• Perceeloppervlakte: 167 m²
• Gebouw gebonden buitenruimte: 21 m²
• Externe bergruimte: 10 m²
• Energielabel: B (geldig tot 12-11-2035)
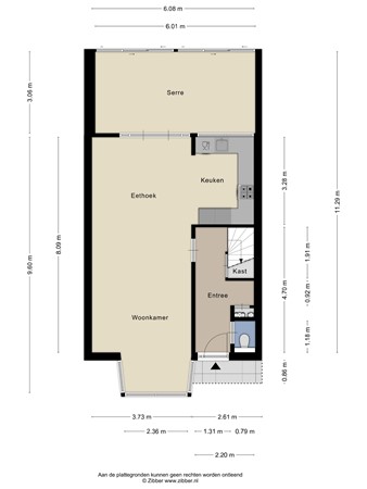
Indeling van de woning
Begane grond: Hal, toilet, meterkast, trapkast, vaste trap naar de eerste verdieping, woonkamer, open keuken en serre.
Eerste verdieping: Overloop, drie slaapkamers, badkamer en vaste trap naar de zolderverdieping.
Zolderverdieping: Voorzolder, wasruimte en slaapkamer met dakkapel.
Via de nette voortuin komt u in de hal van de woning. De hal is praktisch ingedeeld met het toilet, de meterkast, trapkast, toegang tot de woonkamer en de trap naar de eerste verdieping. De hal is afgewerkt met strak stucwerk, kleurrijk behang en een houten vloer.
Woonkamer
De gehele begane grond is in 2019 voorzien van een houten vloer. De wanden zijn strak gestukt en voorzien van een frisse kleur. De erker aan de voorzijde zorgt voor extra lichtinval en in combinatie met de grote raampartijen aan de achterzijde is de woonkamer zeer licht en aangenaam. Vanuit de woonkamer zijn zowel de open keuken als de tuin (via dubbele tuindeuren) bereikbaar.
Open keuken
De keuken is in 2019 geplaatst en uitgerust met een 4-pits gaskookstel, afzuigkap, combi-oven, vriezer, koelkast en vaatwasser. De U-vormige keuken biedt veel bergruimte in de onder- en bovenkasten. De wand is gedeeltelijk betegeld en verder voorzien van strak stucwerk.
Achtertuin met serre
Via de woonkamer bereikt u de ruime serre, gelegen in de op het noorden gesitueerde achtertuin. De serre maakt het mogelijk om het hele jaar door van de tuin te genieten. De tuin is volledig aangelegd en gedeeltelijk voorzien van kunstgras en tegels. Deze onderhoudsarme tuin biedt in de zomer voldoende ruimte om van de zon te genieten.
De vrijstaande stenen berging met elektra (ca. 9 m²) is ideaal voor fietsen en tuingereedschap. Aan de berging bevindt zich een overkapping, die tevens dienstdoet als achterom en een praktische plek biedt voor de containers.
Eerste verdieping
Via de vaste trap bereikt u de overloop, voorzien van een lichte laminaatvloer en gestucte wanden. De overloop biedt toegang tot drie slaapkamers, de badkamer en de vaste trap naar de zolder.
Slaapkamer 1: Gelegen aan de linker achterzijde van de woning en met ruim 16 m² de grootste slaapkamer op deze verdieping. De kamer is voorzien van een lichte laminaatvloer, licht stucwerk en vrolijk behang. Daarnaast beschikt deze slaapkamer over airconditioning (2022) en rolluiken.
Slaapkamer 2: Gelegen aan de rechterachterzijde van de woning en met 7 m² een ideale kinder- of werkkamer. Ook hier ligt een lichte laminaatvloer en zijn de wanden afgewerkt met strak stucwerk in vrolijke kleuren.
Slaapkamer 3: Gelegen aan de voorzijde van de woning en met 14 m² eveneens ruim. De wanden zijn afgewerkt met behang en fris stucwerk. De vloer is voorzien van licht laminaat.
Badkamer: De ruime badkamer is volledig betegeld en voorzien van een ligbad, douchecabine, zwevend toilet en een wastafel met meubel. Het raam zorgt voor veel daglicht en natuurlijke ventilatie.
Zolderverdieping
Via de vaste trap bereikt u de voorzolder, die toegang biedt tot de vierde slaapkamer en bergruimte.
Aan de linkerzijde bevindt zich de HR-combiketel (2020) en de aansluitingen voor zowel de wasmachine als de droger. Aan de rechterzijde bevindt zich een bergruimte, ideaal voor seizoensspullen.
Slaapkamer 4: Deze ruime en lichte slaapkamer heeft een dakkapel over de volledige breedte van de woning. De kamer is afgewerkt in vrolijke kleuren en voorzien van een lichte laminaatvloer. Verder beschikt deze slaapkamer over airconditioning (2022), een wastafel met meubel en veel bergruimte achter de knieschotten.
Bijzonderheden
• Goed onderhouden tussenwoning gelegen aan een groenstrook en fietspad
• Vier volwaardige slaapkamers
• Energielabel B
• Gunstig gelegen ten opzichte van uitvalswegen
• Woning met HR combi ketel 2020 en airco`s 2022
Vraag altijd naar de lijst van zaken.
Deze woning is gemeten volgens de Meetinstructie. De Meetinstructie is gebaseerd op de NEN2580. De Meetinstructie is bedoeld om een meer eenduidige manier van meten toe te passen voor het geven van de gebruiksoppervlakte. De Meetinstructie sluit verschillen in meetuitkomsten niet volledig uit, door bijvoorbeeld interpretatieverschillen, afrondingen of beperkingen bij het uitvoeren van de meting.
Hoewel wij de woning met veel zorg en naar eer en geweten hebben opgemeten, kan het zijn dat er verschillen zijn in de afmetingen. De opgegeven maten zijn indicatief, er kunnen kleine verschillen zijn. Afhankelijk van de moeilijkheidsgraad van het te meten specifieke object kunnen deze verschillen groter of kleiner zijn. Indien de exacte maatvoering voor u van belang is, raden wij u aan de maten zelf te (laten) meten.
Alle genoemde jaartallen zijn circa en zuiver indicatief.
Een mondelinge overeenstemming tussen de particuliere verkoper en de particuliere koper is niet rechtsgeldig. Met andere woorden: er is geen koop. Er is pas sprake van een rechtsgeldige koop als de particuliere verkoper en de particuliere koper de koopovereenkomst hebben ondertekend. Dit vloeit voort uit artikel 7:2 Burgerlijk Wetboek. Een bevestiging van de mondelinge overeenstemming per e-mail of een toegestuurd concept van de koopovereenkomst wordt overigens niet gezien als een 'ondertekende koopovereenkomst'.
De koopakte betreft een standaard-NVM koopovereenkomst met een aantal aanvullende artikelen, zoals:
- ouderdomsclausule (bij woningen ouder dan 25 jaar)
- asbestclausule (bij woningen van voor 1993)
- notarisclausule (maximum aan kosten voor verkoper en tijdsbepaling)
- meetclausule (aansprakelijkheid verkoper en makelaar)
- waarborgsom/bankgarantie van 10%
Deze informatie is door ons met de nodige zorgvuldigheid samengesteld. Dit geldt voor het opmeten van de ruimten, het geven van jaartallen en het geven van overige informatie. Heeft u twijfels omtrent de juistheid van enig punt dan verzoeken wij u vriendelijk dit aan ons kenbaar te maken. Onzerzijds wordt echter geen enkele aansprakelijkheid aanvaard voor enige onvolledigheid, onjuistheid of anderszins, dan wel de gevolgen daarvan. Eens te meer niet indien de betreffende informatie ouder is, moeilijker te verkrijgen, dan wel voor meerdere interpretaties vatbaar.