Beschrijving

Op zoek naar een leuke woning gelegen op een groot perceel en nog helemaal naar eigen smaak in te richten? Deze ruime tussenwoning aan de Apollopad 47 in Boxtel is op zoek naar nieuwe eigenaren met klushandjes. De woning beschikt over een ruime woonkamer, vier volwaardige slaapkamers en is gelegen op een perceel van maar liefst 167 m².

De woning ligt in de wijk Oost, op korte afstand van het centrum en het NS-station van Boxtel. Aan de voorzijde grenst de woning aan een fietspad en een groenstrook met speeltuin, waardoor het hier zelfs voor de kleinsten veilig buitenspelen is. Tevens is de ligging gunstig ten opzichte van de uitvalswegen richting ’s-Hertogenbosch, Tilburg en Eindhoven.

Kenmerken
-	Bouwjaar: 1974
-	Woonoppervlakte: ca. 125 m²
-	Bergruimte: 9 m²
-	Perceel: ca. 167 m²
-	Energielabel: C

Indeling van de woning:
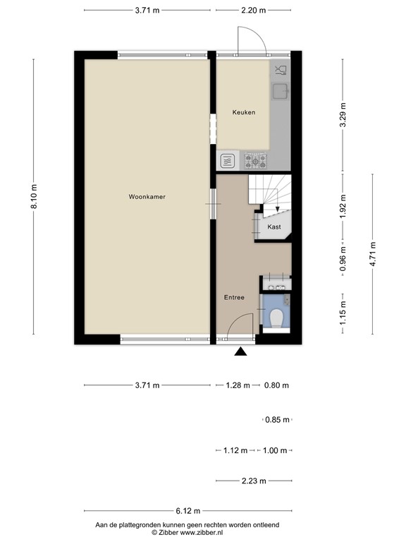
Begane grond: hal, toilet, woonkamer en open keuken
Eerste verdieping: overloop, drie slaapkamers en badkamer
Tweede verdieping: voorzolder, bergruimte en vierde slaapkamer

Omschrijving

U komt via de ruime voortuin in de hal van de woning.

De hal is zeer ruim. Direct aan de rechterzijde bevinden zich het toilet met fonteintje, de meterkast, de garderobe en de trapkast. Vanuit de hal heeft u toegang tot de woonkamer en de trap naar de eerste verdieping.

De woonkamer is zeer licht dankzij de grote raampartijen aan zowel de voor- als achterzijde. De wanden zijn voorzien van behang en deels van gestucte wanden in een lichte kleur. Vanuit de woonkamer is de open keuken bereikbaar.

De gehele begane grond is voorzien van een lichte tegelvloer met vloerverwarming.

De open keuken is gelegen aan de achterzijde van de woning en is voorzien van een 5-pits gaskookstel, afzuigkap, koelkast, vaatwasser, magnetron en veel onder- en bovenkasten. Vanuit de keuken is de achtertuin toegankelijk.

De achtertuin is gelegen op het noorden en eenvoudig afgewerkt. De stenen berging is ideaal voor fietsen en tuingereedschap. Aan de berging bevindt zich een overkapping met achterom.

Eerste verdieping

Via de trap komt u op de overloop, die toegang geeft tot drie slaapkamers, de badkamer en de vaste trap naar de zolderverdieping.

Slaapkamer 1: Deze slaapkamer ligt aan de voorzijde van de woning en is met 14m² zeer ruim. De grote raampartijen zorgen voor veel lichtinval.

Slaapkamer 2: Deze slaapkamer ligt aan de achterzijde van de woning en is eveneens ruim met 16m². Ook deze kamer is voorzien van een groot raam, wat zorgt voor een aangename sfeer.

Slaapkamer 3: Deze slaapkamer ligt aan de achterzijde van de woning en is met 7m² een praktische slaapkamer of thuiswerkplek.

Badkamer: De badkamer is gelegen aan de voorzijde en voorzien van een douchecabine, hoekbad, toilet en wastafelmeubel. De badkamer is volledig betegeld en voorzien van een verlaagd plafond.

Zolderverdieping

U komt op de voorzolder, die toegang geeft tot de vierde slaapkamer en de berging. Daarnaast hangt hier de HR-combiketel en bevinden zich de aansluitingen voor zowel de wasmachine als de droger.

Slaapkamer 4:Deze zeer ruime slaapkamer 16m² ligt over de volledige diepte van de woning. Het dakraam zorgt voor een lichte kamer en achter de knieschotten bevindt zich een zee aan bergruimte.

Bergkast: Ideaal voor seizoensspullen. Hier bevindt zich ook de WTW installatie.

Bijzonderheden
-	Woning is op korte termijn op te leveren
-	Gelegen aan een groenstrook en op loopafstand van verschillende basisscholen
-	Voldoende parkeergelegenheid in de omgeving

Vraag altijd naar de lijst van zaken.

Deze woning is gemeten volgens de Meetinstructie. De Meetinstructie is gebaseerd op de NEN2580. De Meetinstructie is bedoeld om een meer eenduidige manier van meten toe te passen voor het geven van de gebruiksoppervlakte. De Meetinstructie sluit verschillen in meetuitkomsten niet volledig uit, door bijvoorbeeld interpretatieverschillen, afrondingen of beperkingen bij het uitvoeren van de meting.

Hoewel wij de woning met veel zorg en naar eer en geweten hebben opgemeten, kan het zijn dat er verschillen zijn in de afmetingen. De opgegeven maten zijn indicatief, er kunnen kleine verschillen zijn. Afhankelijk van de moeilijkheidsgraad van het te meten specifieke object kunnen deze verschillen groter of kleiner zijn. Indien de exacte maatvoering voor u van belang is, raden wij u aan de maten zelf te (laten) meten.

Alle genoemde jaartallen zijn circa en zuiver indicatief.

Een mondelinge overeenstemming tussen de particuliere verkoper en de particuliere koper is niet rechtsgeldig. Met andere woorden: er is geen koop. Er is pas sprake van een rechtsgeldige koop als de particuliere verkoper en de particuliere koper de koopovereenkomst hebben ondertekend. Dit vloeit voort uit artikel 7:2 Burgerlijk Wetboek. Een bevestiging van de mondelinge overeenstemming per e-mail of een toegestuurd concept van de koopovereenkomst wordt overigens niet gezien als een 'ondertekende koopovereenkomst'.

De koopakte betreft een standaard-VastgoedNederland koopovereenkomst met een aantal aanvullende artikelen, zoals:
- notarisclausule (maximum aan kosten voor verkoper en tijdsbepaling)
- meetclausule (aansprakelijkheid verkoper en makelaar)
- waarborgsom/bankgarantie van 10% 
- Ouderdomsclausule (woning ouder dan 25 jaar)
- Asbest clausule
- As is where is clausule
- Niet bewoningsclausule

Deze informatie is door ons met de nodige zorgvuldigheid samengesteld. Dit geldt voor het opmeten van de ruimten, het geven van jaartallen en het geven van overige informatie. Heeft u twijfels omtrent de juistheid van enig punt dan verzoeken wij u vriendelijk dit aan ons kenbaar te maken. Onzerzijds wordt echter geen enkele aansprakelijkheid aanvaard voor enige onvolledigheid, onjuistheid of anderszins, dan wel de gevolgen daarvan. Eens te meer niet indien de betreffende informatie ouder is, moeilijker te verkrijgen, dan wel voor meerdere interpretaties vatbaar.

Kenmerken